
如果你能发现材料的本源并善于运用它,你会发现它的美。
本案以灰白作为空间的主基调,依靠黑色和极少的跳跃色来完成空间的节奏感。
我们想表达一个安静且舒适的生活空间,在主材的挑选上我们有意的将色彩的饱和度降低,用大面积的体块来表现预先设定的氛围。



过道作为室内空间与空间的连接关系,会显得尤为重要,因此我们把通道低下来的梁结构做了处理,巧妙的用免漆板将梁结构制作成了一个“L”形的体块,穿插于客厅与餐厅,房间与过道的一个空间关系上,用线条灯来减少“L”形体块所带来的厚重感同时又加强形体关系。


我们将面与面、体块与体块的形体构成关系来表达空间的纯粹,而纯粹的空间美感则带来一种清雅、宁静的空间气息。



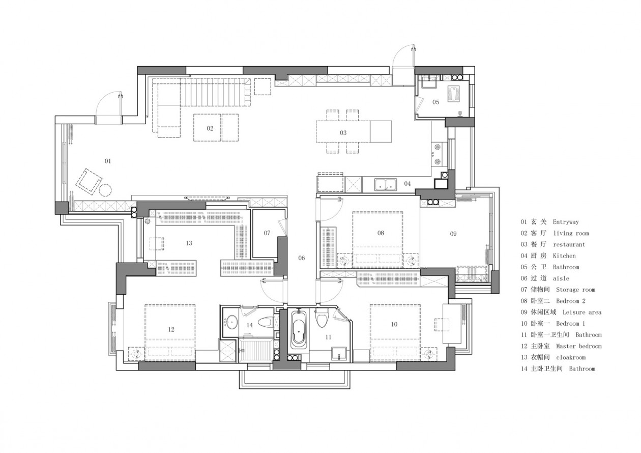
在原建筑的空间上,我们打破了入户、客厅、餐厅与厨房的空间关系,抽离了空间与空间的界限,做成了一个共享的空间。延伸性极强的共享空间感在扩大视觉感官的同时也让生活情景多样化。



在客厅转向过道处,我们做了一个白色的烤漆吊柜来化解转角处的生硬且打破了免漆板的单一性。与此同时过道天花的线条很好的把动态空间的流线带到了静态空间。













在主卧衣帽间的入口处我们用了整一面的纯白色烤漆板,衣帽间的柜门则用了大量的黑色玻璃,我们想把两个空间拉开一个层次,通过黑白这样的一个强烈对比来完成两个空间的过渡,造成两个空间的一个戏剧性效果。




